_
lauréat du palmarès
des jeunes urbanistes 2016

Logements, commerces & espaces publics, dans l’immeuble communal de centre-bourg « Le Thérias »

Maitre d'ouvrage :

Communauté de Communes de la Montagne Thiernoise
& Commune de La Monnerie Le Montel

Maitre d'oeuvre :


- Atelier du Rouget Simon Teyssou & associés
- Atelier de Montrottier Loïc Parmentier & associés
- BET TCE, EUCLID

Surface de plancher :

680 m²

Coût des travaux :

1 314 500 euros HT

Calendrier :

pro en cours

Missions exécutées :

mission MOE base

Localisation :

63650 La Monnerie Le Montel

Dans le but d’accueillir confortablement une épicerie et une nouvelle boulangerie, le projet architectural propose d’agrandir la surface commerciale du rez-de-chaussée par deux actions : la suppression de la circulation verticale originelle libérant ainsi la partie centrale de l’édifice et la démolition puis reconstruction de l’extension en rez-de-chaussée prolongeant les activités commerciales au nord-ouest entre l’édifice et la paroi rocheuse.

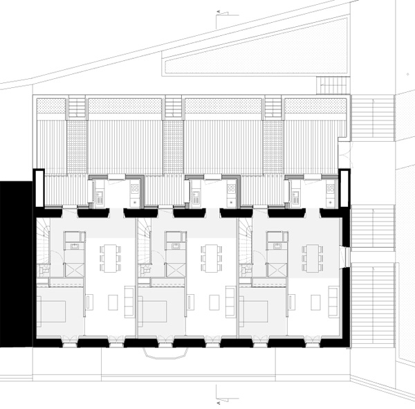
Ces transformations en rez-de-chaussée impliquent d’adresser les nouveaux logements côté rue du 11 Novembre. Une extension sur deux niveaux est adossée à l’édifice le long de la façade nord-ouest qui s’ouvre désormais sur une cour prenant place sur le sous-sol commercial. Elle comprend une cuisine et une loggia pour chacun des 6 logements créés. Trois logements de type 2, adaptés aux personnes à mobilité réduite, sont desservis par la cour commune, accessible depuis l’espace public par un escalier et une rampe qui la relie à l’aire de stationnement. Cette offre de logements répond à la demande d’une population rurale vieillissante et désireuse d’habiter dans le centre bourg à proximité des commerces et des services. Le maintien dans le centre bourg de ces populations fragiles contribue, en retour, au maintien de ses activités.

Trois logements plus grand et en duplex prennent place au deuxième étage de l’immeuble et dans ses combles et sont desservis par des passerelles individuelles qui enjambent la cour depuis la rue du 11 Novembre. Cette distribution par franchissement est récurrente dans le bourg. Elle est empruntée aux dispositifs de certains immeubles voisins implantés en pied de coteau, tout comme l’immeuble Thérias. Ces logements s’adressent prioritairement à de jeunes couples avec ou sans enfants et à des familles monoparentales.

Vue depuis la rue de la gare

Vue depuis la rue de la mairie

Vue depuis la rue de la mairie

Vue depuis la cour

Coupe axonométrique du batiment et de son environnement proche

plan de masse

plan du rez-de-chaussée

plan du premier étage

plan du deuxième étage

coupe AA

Elévation Nord

Elévation Sud